MaryAnn Donahue with deSatnick Real Estate - Cape May New Jersey
1001 Lafayette Street, Cape May NJ     (C): (484) 614-5798     (O): (609) 884-1300
902 Washington Street, Cape May NJ
Rental Period: No dates selected
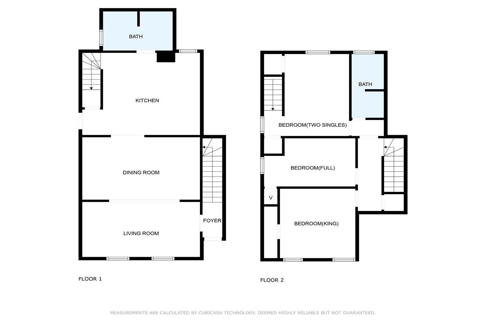
Bedrooms: 3
Bathrooms: 2
Style: Duplex
Sleeps: 6
Key: 157042
Listing Agent: Kathleen Satt

Request Information Virtual Tour
Situated on a corner lot of tree-lined Washington Street, this newly renovated duplex is just steps away from the Washington Inn, Southern Mansion, and the Emlen Physick Estate and only 3 short blocks to the historic Washington Street Mall. Relax and enjoy summer evenings relaxing in rocking chairs on the large covered front porch as horse drawn carriages pass by. The first level of this historic home features a living room, dining room area, and an open kitchen with all new appliances. Also, on the first floor is a full bathroom with a stackable washer and dryer and access to a side yard with an outside shower. The second floor consists of three bedrooms - one with a king bed, one with a full bed, and one with two twin beds. Pillows and blankets are provided but tenants are responsible for bringing their own linens and towels. This home is a short distance to the beach and offers some beach equipment for your enjoyment! There is a $200 cleaning fee on all rentals.
PROPERTY AMENITIES
# of Washer 1
# of Beach Chairs 4
# of Ceiling Fans 5
# of Dishwasher 1
# of Dryer 1
# of Outside Showers 1
# of SmartTV 2
# of TVs 4
BBQ Gas 1
Beach Chairs 1
Beach Equipment 1
Blankets 1
Blender 1
Ceiling Fans 1
Central A/C 1
Deck Furniture 1
Dining Capacity (Inside) 6
Dining Table 1
Dishwasher 1
Disposal 1
Double Beds 1
Dryer 1
Fenced Yard 1
First Floor Bathroom 1
Full Size Refrigerator 1
Furnished 1
Gas Heat 1
Keurig 1
Keys Provided 1
King Beds 1
Kitchen 1
Microwave 1
No Pets Accepted 1
Open/Covered Porch 1
Outside Shower 1
Oven 1
Pillows 1
Recycling Day 1
Ring Doorbell 1
Single Beds 2
Smart TV 1
Smoke Free 1
Stove 1
Television 1
Tenant Brings Linens 1
Toaster 1
Toaster Oven 1
Trash Day 1
Trash Removal Service 1
TV Streaming Device 1
Utils Included 1
Washer 1
Wifi 1

RATES

Rate Type
Rate
Valid Rate Periods
Check-In to Check-Out
Weekly Sat - Sat
$2000.00
Nov 22, 2025  To  Nov 29, 2025
Weekly Sat - Sat
$2000.00
Nov 29, 2025  To  Dec 06, 2025
Weekly Sat - Sat
$2000.00
Dec 06, 2025  To  Dec 13, 2025
Weekly Sat - Sat
$2000.00
Dec 13, 2025  To  Dec 20, 2025
Weekly Sat - Sat
$2000.00
Dec 20, 2025  To  Dec 27, 2025
Weekly Sat - Sat
$2000.00
Dec 27, 2025  To  Jan 03, 2026
Weekly Sat - Sat
$2000.00
Jan 03, 2026  To  Jan 10, 2026
Weekly Sat - Sat
$2000.00
Jan 10, 2026  To  Jan 17, 2026
Weekly Sat - Sat
$2000.00
Jan 17, 2026  To  Jan 24, 2026
Weekly Sat - Sat
$2000.00
Jan 24, 2026  To  Jan 31, 2026
Weekly Sat - Sat
$2000.00
Jan 31, 2026  To  Feb 07, 2026
Weekly Sat - Sat
$2000.00
Feb 07, 2026  To  Feb 14, 2026
Weekly Sat - Sat
$2000.00
Feb 14, 2026  To  Feb 21, 2026
Weekly Sat - Sat
$2000.00
Feb 21, 2026  To  Feb 28, 2026
Weekly Sat - Sat
$2000.00
Feb 28, 2026  To  Mar 07, 2026
Weekly Sat - Sat
$2000.00
Mar 07, 2026  To  Mar 14, 2026
Weekly Sat - Sat
$2000.00
Mar 14, 2026  To  Mar 21, 2026
Weekly Sat - Sat
$2000.00
Mar 21, 2026  To  Mar 28, 2026
Weekly Sat - Sat
$2000.00
Mar 28, 2026  To  Apr 04, 2026
Weekly Sat - Sat
$2000.00
Apr 04, 2026  To  Apr 11, 2026
Weekly Sat - Sat
$2000.00
Apr 11, 2026  To  Apr 18, 2026
Weekly Sat - Sat
$2000.00
Apr 18, 2026  To  Apr 25, 2026
Weekly Sat - Sat
$2000.00
Apr 25, 2026  To  May 02, 2026
Weekly Sat - Sat
$2300.00
May 02, 2026  To  May 09, 2026
Weekly Sat - Sat
$2300.00
May 09, 2026  To  May 16, 2026
Weekly Sat - Sat
$2300.00
May 16, 2026  To  May 23, 2026
Weekly Sat - Sat
$2300.00
May 23, 2026  To  May 30, 2026
Weekly Sat - Sat
$4140.00
May 30, 2026  To  Jun 06, 2026
Weekly Sat - Sat
$4140.00
Jun 06, 2026  To  Jun 13, 2026
Weekly Sat - Sat
$4140.00
Jun 13, 2026  To  Jun 20, 2026
Weekly Sat - Sat
$4140.00
Jun 20, 2026  To  Jun 27, 2026
Weekly Sat - Sat
$4140.00
Jun 27, 2026  To  Jul 04, 2026
Weekly Sat - Sat
$4370.00
Jul 04, 2026  To  Jul 11, 2026
Weekly Sat - Sat
$4370.00
Jul 11, 2026  To  Jul 18, 2026
Weekly Sat - Sat
$4370.00
Jul 18, 2026  To  Jul 25, 2026
Weekly Sat - Sat
$4370.00
Jul 25, 2026  To  Aug 01, 2026
Weekly Sat - Sat
$4370.00
Aug 01, 2026  To  Aug 08, 2026
Weekly Sat - Sat
$4370.00
Aug 08, 2026  To  Aug 15, 2026
Weekly Sat - Sat
$4370.00
Aug 15, 2026  To  Aug 22, 2026
Weekly Sat - Sat
$4025.00
Aug 22, 2026  To  Aug 29, 2026
Weekly Sat - Sat
$4025.00
Aug 29, 2026  To  Sep 05, 2026
Weekly Sat - Sat
$2500.00
Sep 05, 2026  To  Sep 12, 2026
Weekly Sat - Sat
$2500.00
Sep 12, 2026  To  Sep 19, 2026
Weekly Sat - Sat
$2500.00
Sep 19, 2026  To  Sep 26, 2026
Weekly Sat - Sat
$2500.00
Sep 26, 2026  To  Oct 03, 2026
Weekly Sat - Sat
$2500.00
Oct 03, 2026  To  Oct 10, 2026
Weekly Sat - Sat
$2500.00
Oct 10, 2026  To  Oct 17, 2026
Weekly Sat - Sat
$2500.00
Oct 17, 2026  To  Oct 24, 2026
Weekly Sat - Sat
$2500.00
Oct 24, 2026  To  Oct 31, 2026
Weekly Sat - Sat
$2500.00
Oct 31, 2026  To  Nov 07, 2026
Weekly Sat - Sat
$2000.00
Nov 07, 2026  To  Nov 14, 2026
Weekly Sat - Sat
$2000.00
Nov 14, 2026  To  Nov 21, 2026
Weekly Sat - Sat
$2000.00
Nov 21, 2026  To  Nov 28, 2026
Weekly Sat - Sat
$2000.00
Nov 28, 2026  To  Dec 05, 2026
Weekly Sat - Sat
$2000.00
Dec 05, 2026  To  Dec 12, 2026
Weekly Sat - Sat
$2000.00
Dec 12, 2026  To  Dec 19, 2026
Weekly Sat - Sat
$2000.00
Dec 19, 2026  To  Dec 26, 2026
Weekly Sat - Sat
$2000.00
Dec 26, 2026  To  Jan 02, 2027
Daily (3-day min.)
$335.00
Nov 27, 2025  To  Jan 03, 2026
Daily (2-day min.)
$375.00
Nov 27, 2025  To  May 16, 2026
Daily (2-day min.)
$375.00
Sep 05, 2026  To  Jan 02, 2027
Last DB Update:11/27/2025-01:45:44PM
The information contained in this website does not serve as a substitute for an on-site visit to the vacation rental unit and should not be relied upon solely in the decision to rent the vacation unit. MaryAnn Donahue with deSatnick Real Estate makes no warranty of the accuracy of the information on this site or any site to which we link.
  QUICK LINKS
- Home
- Directions
- Contact
- Site Map
- Login
ABOUT
- Why MaryAnn Donahue
- Email Updates
SALES
- Your Home's Value
- Sales Information
RENTALS
- Last Minute Rentals
- Rental Search
- Let Us Help
- List Your Rental
- Rental Information
CAPE MAY
- Local Events
- Beach Cams
- Weather
- Things To Do
© 2018 MaryAnn Donahue with deSatnick Real Estate Featuring Cape May Vacation Rentals & Properties For Sale - All Rights Reserved. Site Designed By: Square 1 Design | Cape May
Email Alerts Google+ Facebook Instagram